叶先生这套房子是位于贵州贵阳,业主叶先生是位it从业者,在8年前曾经装修过一套房子,当时的房子装修是“简约风格”的,随着业主阅历的沉淀,时间久了就感觉过时,而这次装修,他希望可以以现代美式作为定位,勾勒出一种符合他审美的档次与空间感,经过设计师sunny的合理规划与设计搭配,最终设计效果与装修落地都是让业主感受十分满意的。
//
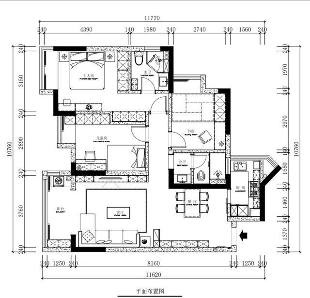
户型图+平面方案图
//
▲户型硬伤分析:①餐厅、厨房空间太小、利用合理;②主卧进门位置空间浪费;③儿童房与主卧之间的空间,以常规布局的话,动线都会比较拥挤。
▲根据业主的交待,在制作设计平面方案的时候,在空间内预设了大量的收纳柜以满足两位女生的储物需求。而针对户型的硬伤,也做了对应的解决方案:①厨房与生活阳台打通,并把过道的墙面拆除改大了餐厅;②卧室的过道往里移动,改变了房门的位置,为各个房间的空间利用提供了更佳的方案;③主卧与儿童房之间的墙体拆除,改成了弓字形的入墙式衣柜设计。
//
客厅
//
▲效果图:根据业主的交待,客厅整体装修没有什么繁杂的东西,在现代大方的空间下,沙发墙加入叶先生喜欢的线条元素,然后布置简约美式的家居软装,显得优雅而又大方。
推荐阅读:奢侈女人网




